The Cottages
Lakehouse Lodge
The flagship of our cottages! Waterfront with exceptional views. This house has it all, massive 1100 square floor living room with window wall overlooking the lake.
Vaulted ceilings, gas fireplace, dining area and multiple sitting areas to enjoy. Gorgeous kitchen with dual ovens, 8 burner stove top, double wide refrigerator, stand up freezer, warming drawers, ice machine, two sinks, two dishwashers and wine fridge.
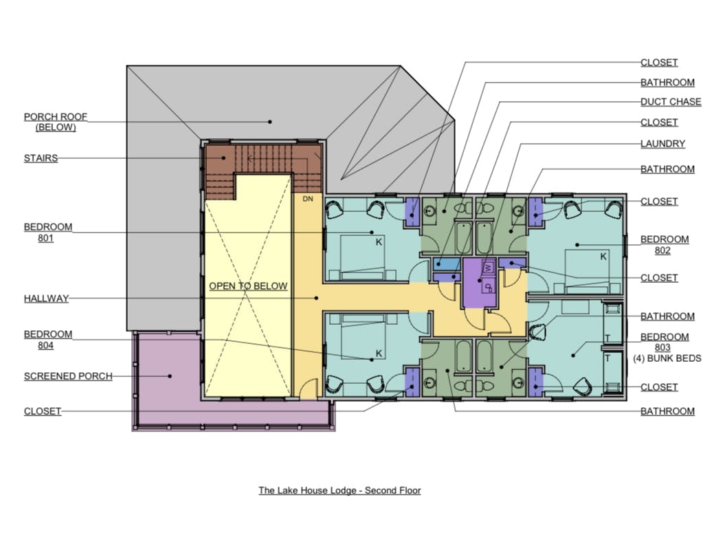
Two half bathrooms and a pantry round out the first floor. Upstairs you'll find four bedrooms all with their own private en-suite bathrooms.
Three bedrooms feature king size beds and the fourth offers four twin bunks.
Complete with full size washer and dryer as well as wrap around porch with outdoor fireplace and two screen rooms.
Access to waterfront, docks, patio, kayaks, paddle boards, canoe, peddle boat, life jackets and more included with your stay.
































