The Cottages
Berkshire Cottage
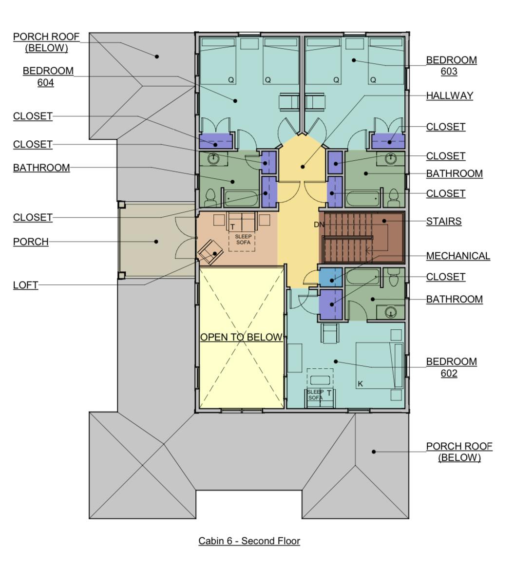
Four bedrooms, four full baths. First floor offers plenty of space with dining room, full kitchen, two sitting areas, a half bathroom with full size washer and dryer, a bedroom with king size bed and an en-suite bathroom with shower. On the second level you'll find a loft space with twin size sleeper sofa and a balcony. Down the hall there are two bedrooms each featuring two queen size beds and their own en-suite bathrooms with tub/shower combo. In the master there is a king size bed as well as a twin sleeper sofa and another en-suite bathroom with tub/shower combo. On the porch there is more seating areas including a large dining room table and chairs as well as a screen porch with its own gas fireplace.
Access to waterfront, docks, patio, kayaks, paddle boards, canoe, peddle boat, life jackets and more included with your stay.



























